Neugestaltung Peter-Plümpe-Platz
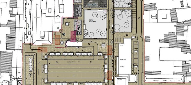
Derzeit wird am Peter-Plümpe-Platz die größte Teilmaßnahme der Stadtkernerneuerung durchgeführt. Im Herbst 2023 haben die Bauarbeiten nach einer längeren Planungsphase mit einem vorgeschalteten Planungswettbewerb begonnen. Mit der Neugestaltung wird der Platz zweigeteilt. Zur Annastraße hin entsteht ein Aufenthaltsbereich mit einer neuen Grünfläche mit Ruheraum und Wasserspiel, Gastro- und Spielflächen. Der Bereich zur Marktstraße wird als multifunktionaler Platz ausgestaltet, der als Parkplatz nutzbar, aber auch für größere Veranstaltungen geeignet ist. Der Parkplatzbereich wird mit Bäumen umsäumt und mit Schnellladesäulen für Elektrofahrzeuge ausgestattet. Pilger- und Touristenbusse werden hier keine Ankunftsstelle mehr bekommen. Dafür wird an anderer Stelle eine Alternative eingerichtet. Bei der Planung wurde berücksichtigt, dass auch in Zukunft der Wochenmarkt und die jährliche Kirmes auf dem Peter-Plümpe-Platz stattfinden können.

Übersichtsplan Peter-Plümpe-Platz
Die Bildergalerie wird entsprechend des Baufortschritts nach und nach ergänzt.

